The Chicagoist will be launching later but in the meantime please enjoy our archives.

Here's A Glimpse Of The Long-Planned Maggie Daley Park Restaurant

By Sophie Lucido Johnson in Food on Apr 14, 2016 8:58PM

2016_renderingparkgrill.jpg
via Grant Park Conservancy

Plans for the long-awaited Maggie Daley Park restaurant are finally beginning to move forward, after initial plans sparked controversy. The organization Friends of the Parks claimed that the park location violated the Lakefront Protection Ordinance, but they were willing to compromise on a scaled-down design; the design firm went back to the drawing board.

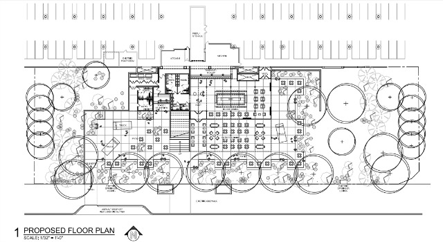
Roughly a year later, that initial design shrunk from 15,750 square feet to 8,000 according to a new proposal released last month. Floor plans and rendering that came out this week take into consideration feedback from public meetings held to ensure that the restaurant satisfies all concerned parties.

If this new design is approved by the city, the glass-walled restaurant is set to open sometime in 2017. It will also have a green roof —yes, the kind of green roof that you can walk on, because it's a functional garden that happens to be on a roof.

"This latest rendering has a lot more outdoor seating, and then I'm also going to get trees added," Grant Park Conservancy President Bob O'Neill told Chicagoist. He added that the additional trees will complement the large mature trees along Monroe, which will be saved despite the surrounding construction.

Another addition to the new restaurant plan is a set of public restrooms that will be accessible without having to go through the restaurant. "The idea was to get the park to be really user friendly. If you want to attract people year round—if you want to get exercisers and families—you have to have amenities," O'Neill said.

The park's construction will be funded privately by Chicago's Four Corners Tavern Group, who is locked into a 10-year agreement to operate the business as well. Four Corners has furthermore agreed to pay the Chicago Park District $75,000 annually for rent, as long as between 5 and 10 percent of gross sales.

Arguments for this new, smaller plan will be heard before the Chicago Plan Commission on April 21 and 10 a.m. The hearing is open to the public. The restaurant and roof floor plans are below:

Floorplan1.jpg

floorplan2.jpg
renderings via the Grant Park Conservancy